Lấy cảm hứng từ một “chốn ẩn mình” giữa đô thị, không gian sống được thiết kế giúp lấy nhiều ánh sáng, chú trọng công năng phục vụ sinh hoạt và nghỉ ngơi cho các thành viên trong gia đình. Cùng NHÀ ĐẸP SÀI GÒN tham khảo bài viết sau đây nhé!

Biệt thự có quy mô 3,5 tầng với diện tích 550 m2, được xây dựng trên khu đất rộng 880 m2, là nơi sinh sống của gia đình một doanh nhân thuộc thế hệ 9x. Công trình chú trọng đến giải pháp lấy sáng, bố trí mảng xanh, đồng thời cân bằng giữa công năng phục vụ sinh hoạt và nghỉ ngơi dành cho các thành viên trong gia đình.

Biệt thự được thiết kế kiến trúc hình khối đơn giản, hiện đại, hướng tới tính bền vững, với vật liệu tự nhiên pha lẫn gỗ công nghiệp như đá, sỏi, bê tông, gỗ thịt kết hợp với gỗ công nghiệp. Khối nhà nằm sâu trong ngõ, được bao bọc bởi một lớp hành lang lấy sáng và gió, giúp đối lưu không khí hiệu quả.

Tầng 1 gồm phòng khách, bếp – ăn và một phòng ngủ, hướng tầm nhìn ra bể bơi bên hông nhà. Tone màu chủ đạo là trầm và lạnh. Lấy cảm hứng từ một chốn ẩn mình giữa đô thị, các tiện nghi được đưa vào từng không gian ngôi nhà theo chủ đích riêng của KTS. Nếu bể bơi, khu sinh hoạt chung là nơi các thành viên trong gia đình quây quần, thì phòng ngủ và không gian làm việc yên tĩnh giúp gia chủ thư giãn, nạp năng lượng khi về nhà.

Không gian sinh hoạt chung được thiết kế theo hướng mở, không sử dụng vách ngăn phòng. Bể bơi và vườn cây giúp không gian nhà luôn mát mẻ, thoáng đãng.

Khu bếp thiết kế âm tường, bổ sung bàn đảo, giúp gia chủ thuận tiện sinh hoạt.

Hành lang bên hông nhà được trang trí như không gian tại các resort nghỉ dưỡng.

Khu vực dưới gầm cầu thang được tận dụng để bố trí một góc ngồi thư giãn.

Biệt thự có tổng 4 phòng ngủ, được thiết kế phong cách đồng nhất, đều có cửa sổ lớn để lấy ánh sáng tự nhiên và gió tự nhiên.

Phòng ngủ chính tích hợp không gian làm việc tại nhà, nằm liền kề khu thay đồ và vệ sinh khép kín.

Phòng thay đồ với hệ tủ kịch trần, khoang lưu trữ rộng.

Bồn tắm nằm granito, bổ sung vật liệu thiên nhiên như sỏi, đá cuội cắt lát hay gỗ tự nhiên, giúp tăng yếu tố nghỉ dưỡng, tiện nghi cho không gian biệt thự.

Sân thượng rộng rãi để làm vườn cây, đồng thời phục vụ cho các buổi tiệc ngoài trời.

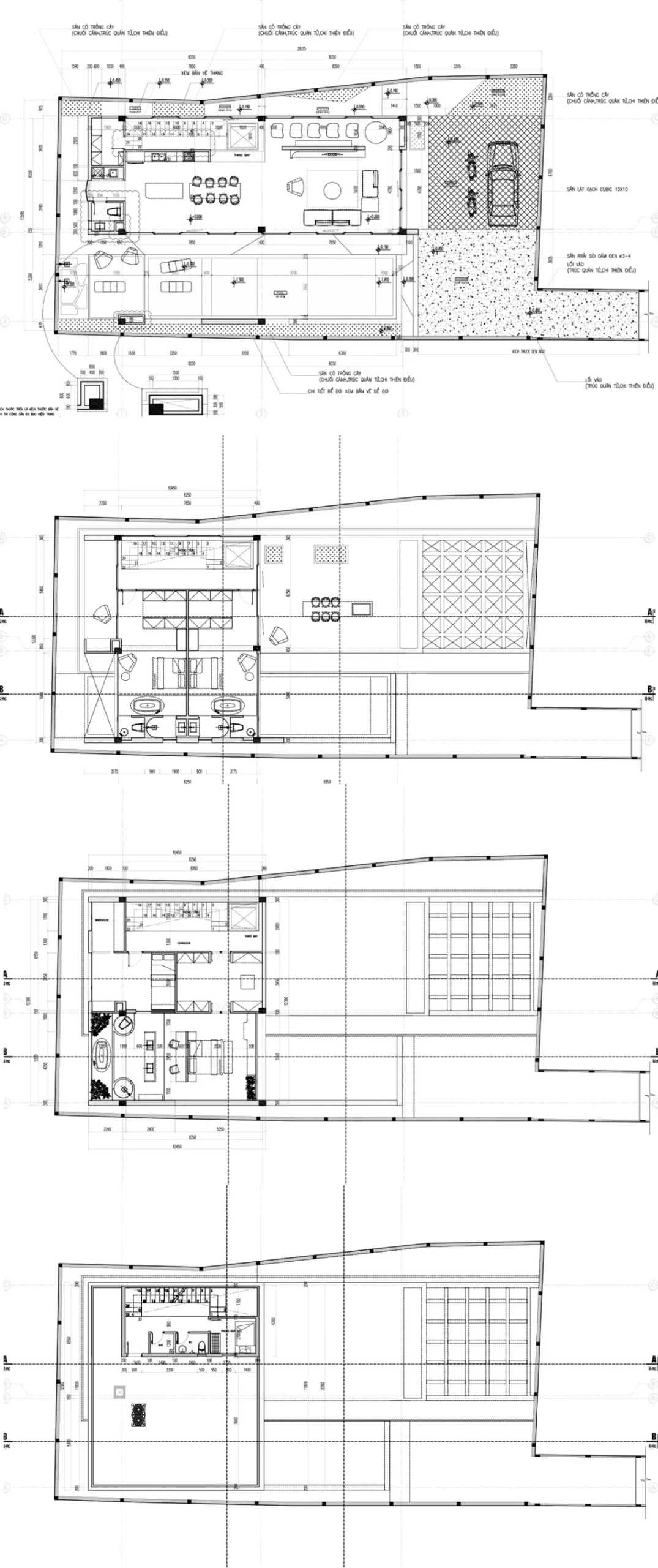
Mặt bằng công năng các tầng.
Quý gia chủ có nhu cầu tư vấn và thiết kế thi công trọn gói, hãy liên hệ ngay Công ty TNHH Xây dựng Kiến trúc NHÀ ĐẸP SÀI GÒN. Chúng tôi sẽ nhanh chóng tư vấn và dự toán tổng chi phí hoàn toàn miễn phí.
