Lấy ý tưởng từ một tiệm mì ramen, phòng bếp được thiết kế để gia chủ và khách đến nhà có thể ngồi ăn tại chỗ như ở cửa hàng. Cùng NHÀ ĐẸP SÀI GÒN tham khảo bài viết sau đây nhé!

Phòng bếp rộng 7 m2, là điểm nhấn của căn hộ có diện tích 50 m2 nằm trong một tòa chung cư tại Quận 2, Thành phố Hồ Chí Minh. Gia chủ là một người đàn ông độc thân, đam mê du lịch, mong muốn sở hữu không gian sống đầy đủ tiện nghi, ưu tiên yếu tố nghỉ dưỡng.

Khu vực bàn đảo được thiết kế hệ trần gỗ, kết hợp chiếc đèn thả cỡ lớn tạo cảm giác như đang dùng bữa ở nhà hàng. Kế bên là một tủ rượu mini.

Khu nấu nướng được trang bị thiết bị hiện đại, bố trí gọn gàng trong tủ bếp kịch trần. Mặc dù diện tích nhỏ, nhưng phòng bếp vẫn rất thoáng nhờ lối đi có chiều rộng hợp lý, cùng một cửa sổ nhỏ để lấy sáng và thông khí.

Giá để bát đĩa được thiết kế nâng hạ linh hoạt, giúp gia chủ dễ dàng lấy đồ trên cao.

Từ cửa bước vào là một góc trang trí mang màu sắc Nhật Bản, với các món nội thất được thiết kế riêng. Tổng thể căn hộ sử dụng giấy dán tường tạo hình vân đá thô ráp, nền màu xám chủ đạo. Đồ nội thất rời và liền tường bằng gỗ với màu trầm, vẻ thô mộc.

Phòng khách rộng khoảng 15 m2, tràn đầy ánh sáng tự nhiên nhờ vách kính sát trần.

Hệ thống đèn phòng khách được lắp đặt 4 chế độ ánh sáng khác nhau tùy vào mục đích sử dụng.

Khi kéo rèm và điều chỉnh ánh sáng phía sau vách treo tivi, phòng khách sẽ trở thành một rạp chiếu phim tại nhà.

Phòng ngủ rộng 12 m2, sử dụng các chất liệu chủ đạo gồm vải len, lụa, trần có tạo hình như mái nhà để tạo vẻ ấm cúng. Hệ tủ quần áo được bố trí ở lối vào phòng ngủ.

Phòng vệ sinh rộng 4,5 m2 thiết kế tối giản nhằm tiết kiệm diện tích. Bồn tắm đứng được cải tạo thành bồn tắm nằm, tường ốp gạch giả gỗ, kết hợp cửa lùa.

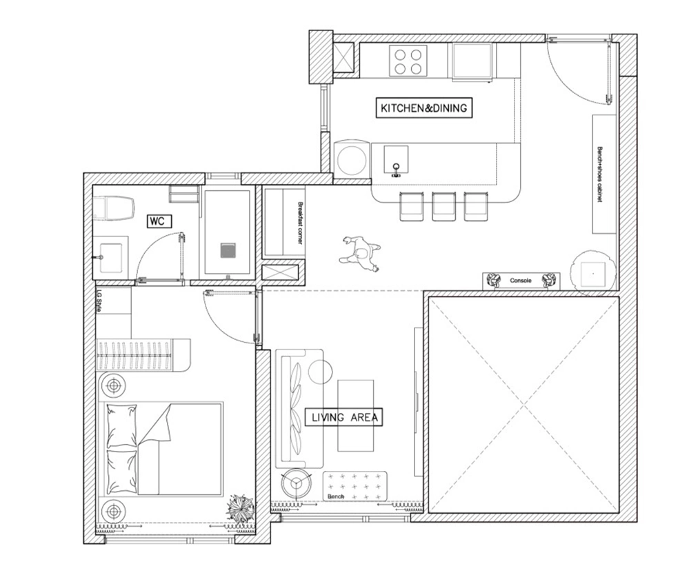
Mặt bằng bố trí các không gian chức năng của căn hộ.
Quý gia chủ có nhu cầu tư vấn và thiết kế thi công trọn gói, hãy liên hệ ngay Công ty TNHH Xây dựng Kiến trúc NHÀ ĐẸP SÀI GÒN. Chúng tôi sẽ nhanh chóng tư vấn và dự toán tổng chi phí hoàn toàn miễn phí.
